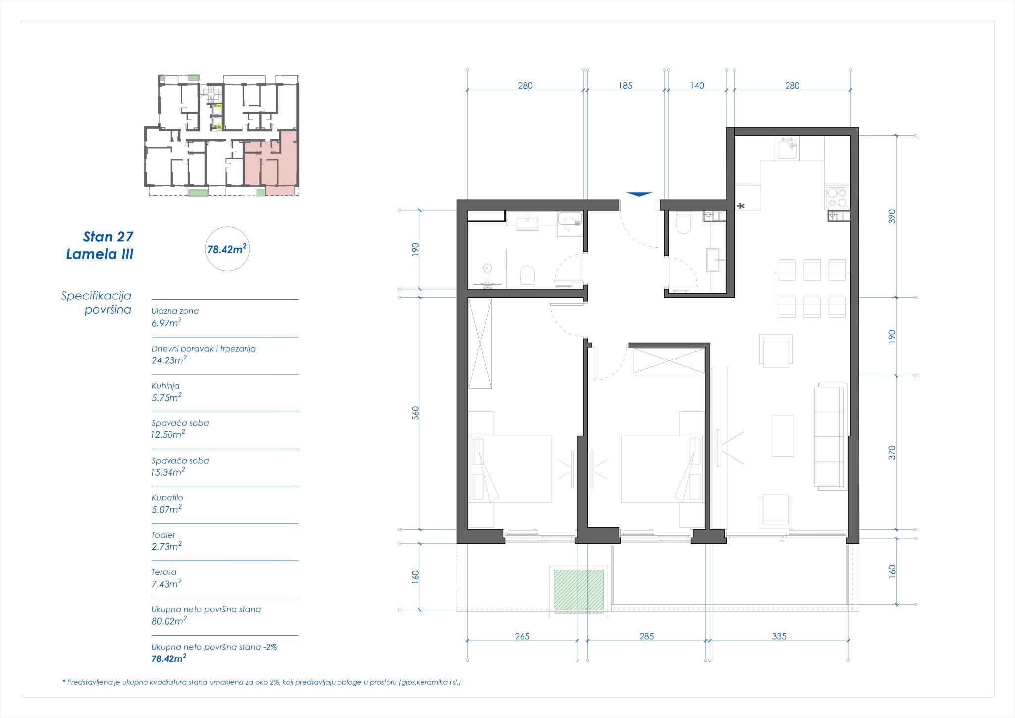
Osnova stana

Plan, osnova stana broj 27

Zakažite Posetu

Budite korak bliže vašem savršenom domu, i osigurajte svoje mesto u srcu Kragujevca