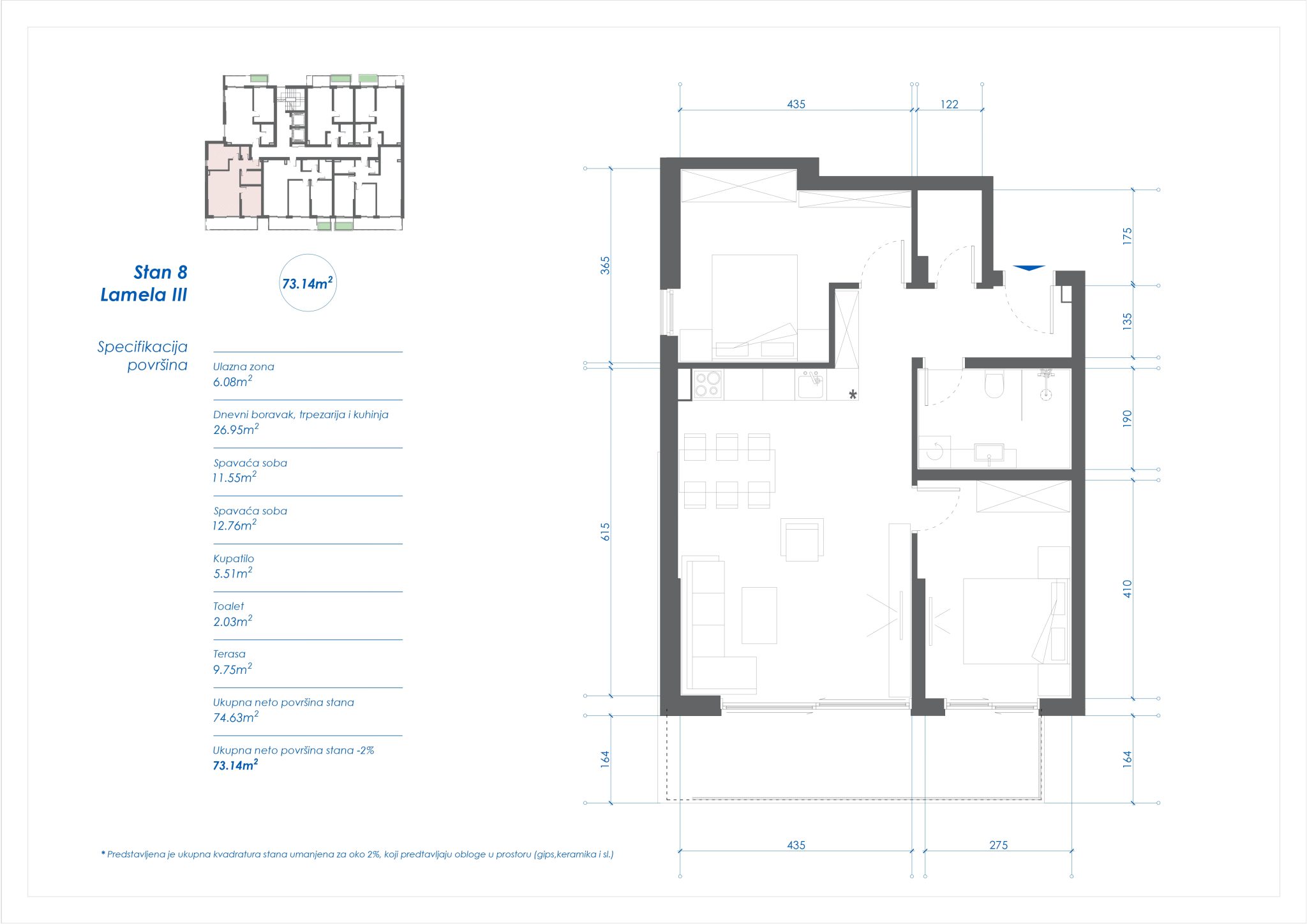
Stan 8

Osnova stana

Plan, osnova stana broj 8

Zakažite Posetu

Budite korak bliže vašem savršenom domu, i osigurajte svoje mesto u srcu Kragujevca